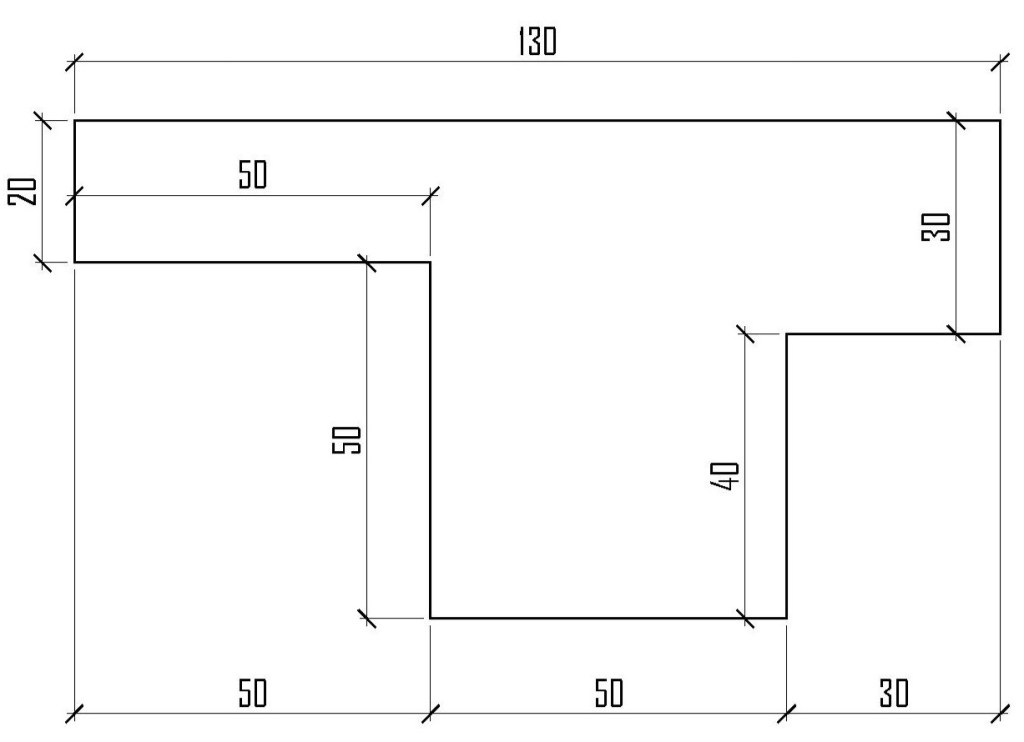
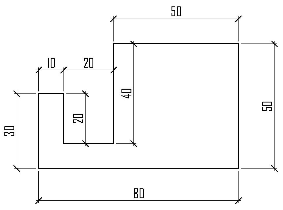
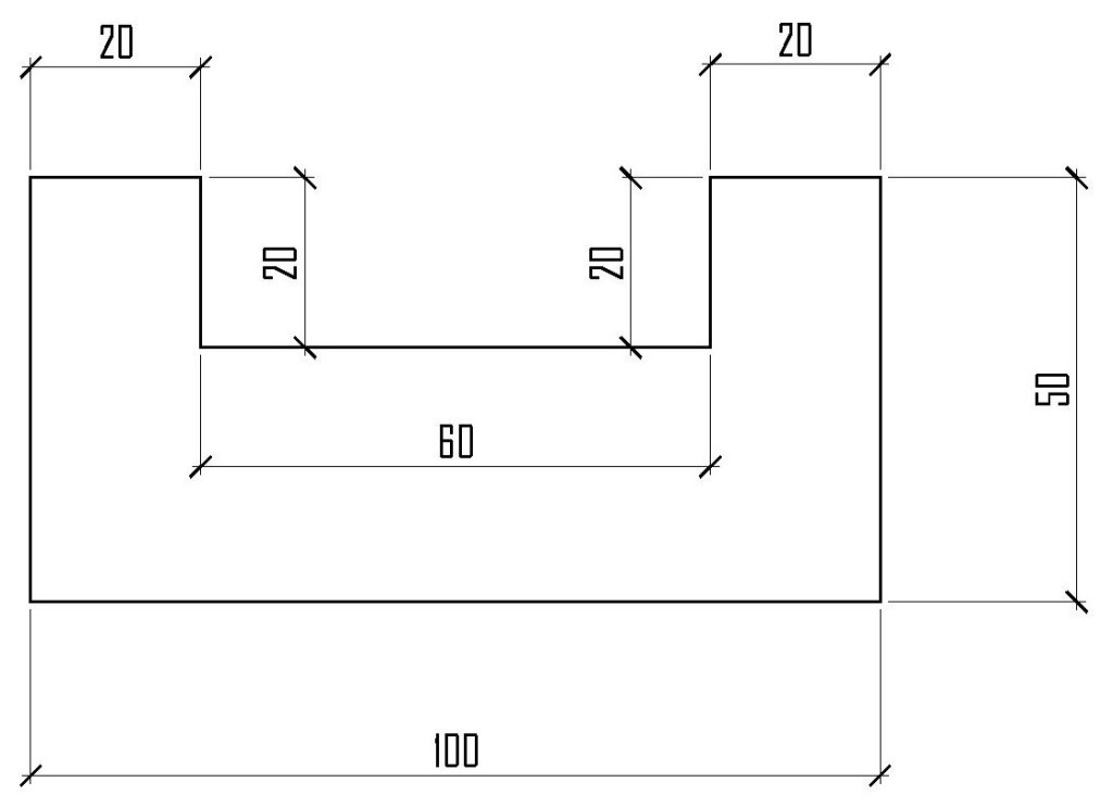
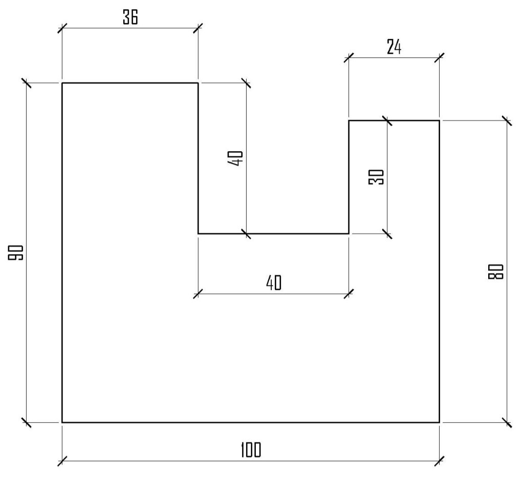
AutoCAD Dersleri: Düzlemsel Formüller ile Makine Parçası Çizimi
ChronoScribe Studio’nun AutoCAD Dersleri serisinin bu bölümünde, teknik çizimin temel taşlarından olan düzlemsel formüllere dalıyoruz.
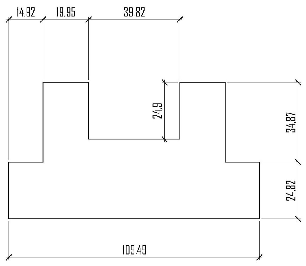
Bu uygulamalı çizim videolarında, @x,y koordinat sistemini kullanarak nasıl daha hızlı, hassas ve profesyonel çizimler yapabileceğinizi bir makine parçası üzerinde adım adım gösteriyorum. Bu temel formüle hakim olmak, AutoCAD’deki hızınızı ve yetkinliğinizi kökten değiştirecek!
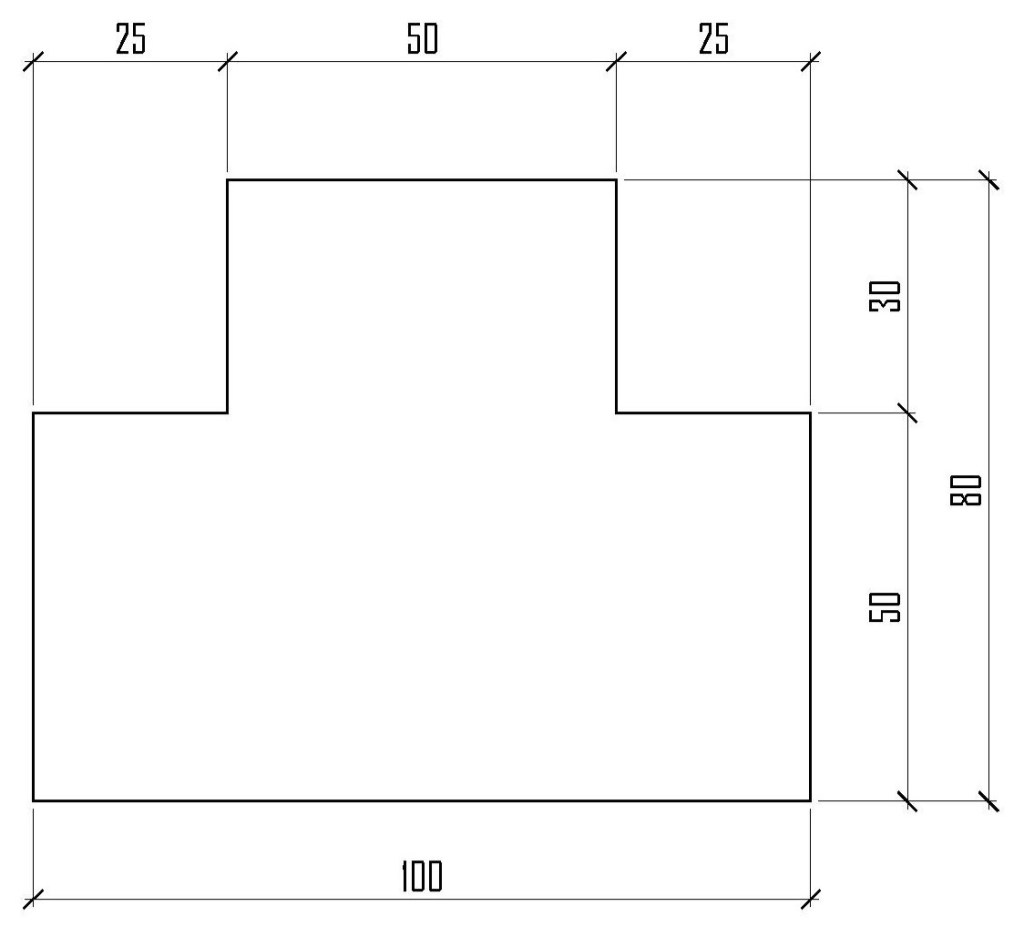
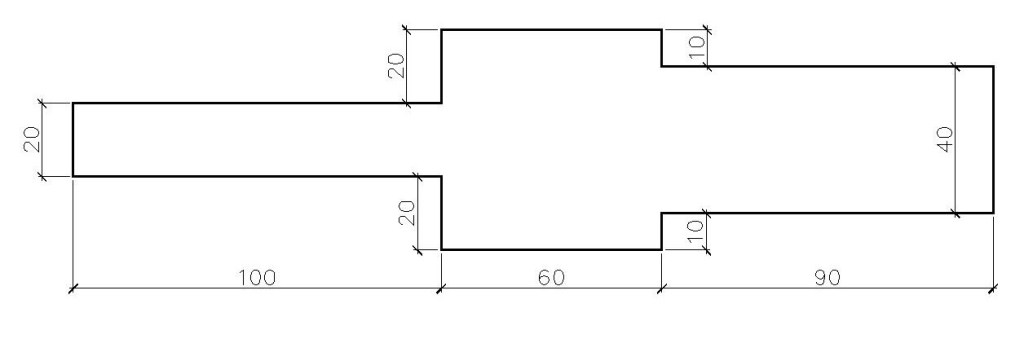
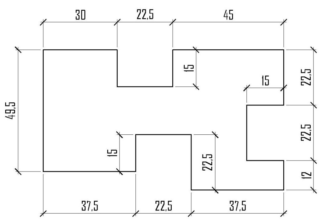
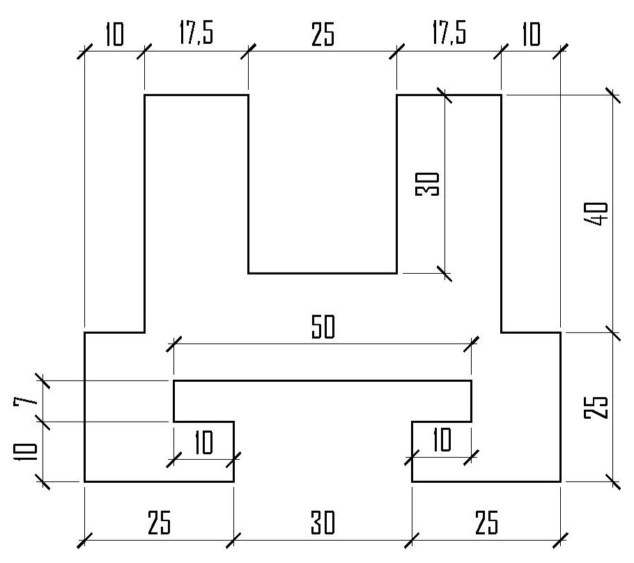
🔹 Temel Formül Kullanımı: @x,y Bu komut, bulunduğunuz son noktadan itibaren X ve Y eksenlerinde ne kadar hareket edeceğinizi belirtir.
🔹 Pratik Yön Hareketleri:
- Sağa hareket:
@100,0(X’te 100 birim ileri, Y’de sabit) - Sola hareket:
@-100,0(X’te 100 birim geri, Y’de sabit) - Yukarı hareket:
@0,100(X’te sabit, Y’de 100 birim ileri) - Aşağı hareket:
@0,-100(X’te sabit, Y’de 100 birim geri)
🔹 Önemli Not: Formüllerde ondalık sayılar nokta (.) ile yazılır (Örnek: @22.5,0)
Formül Kullanımı ve Düzlemsel Formül
Ondalı Sayı Girilimi
Seçim Alanı Yaratma
Mouse Orta Scrool Kullanımı
Zoom Kısayolu
Kes-Yapıştır
Delete
Makina Ölçü Sistemi
















Metinler ve Görseller : Volkan Özpolat
Chrono Scribe Studio sitesinden daha fazla şey keşfedin
Son gönderilerin e-postanıza gönderilmesi için abone olun.
Yorum bırakın